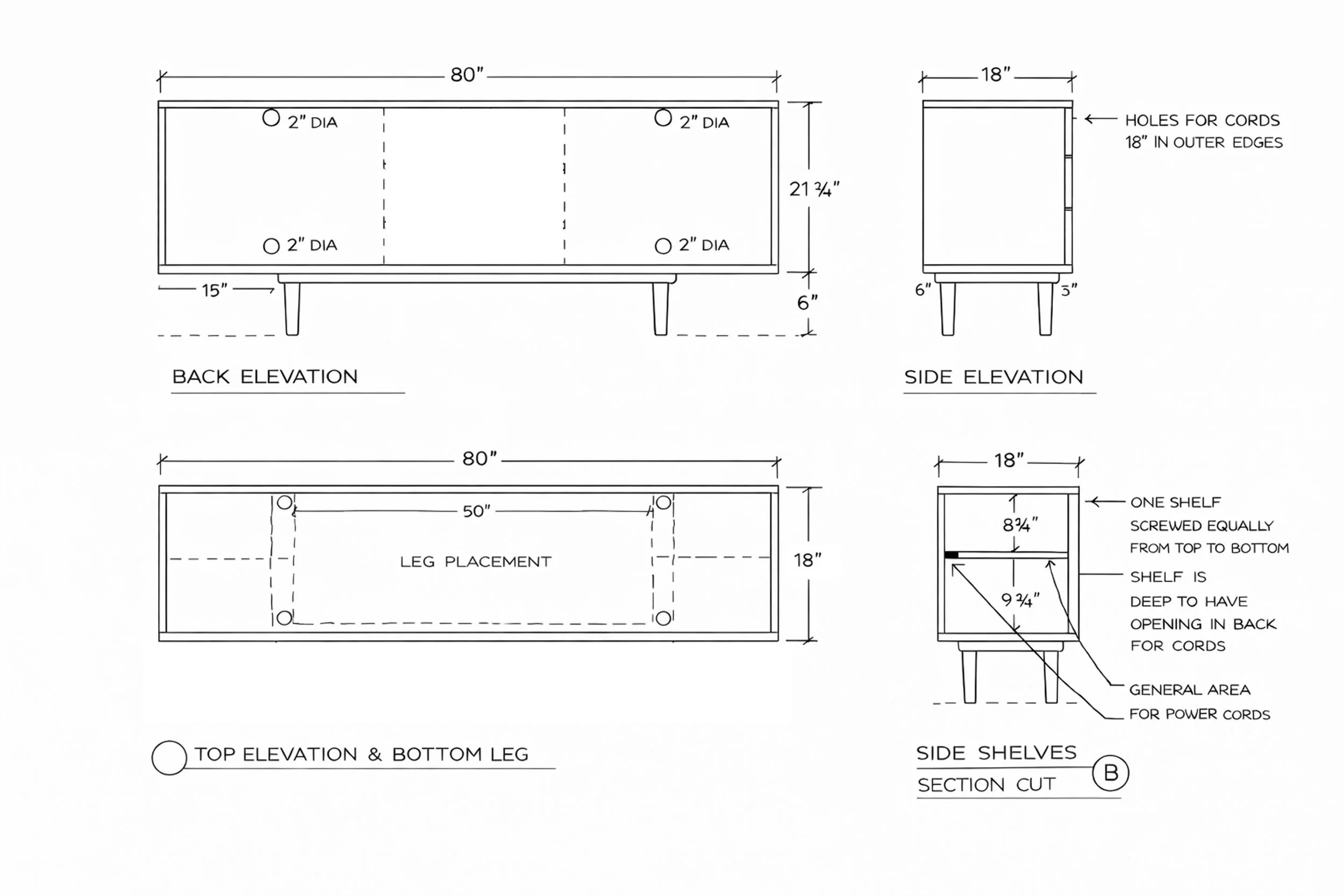
Media ConsoleCustom pine construction - 2020 Completed Sketch - Front Elevation and Front Section Sketch - Elevation and Section Cuts Sketch - Perspective Sketch - Door Detail